1. Das Projekt

Bei der geplanten Wohnanlage, 18 Ein- oder Zweifamilienhäuser, handelt es sich um ein Modellprojekt, unterstützt von der Stadt Trebbin,  mit dem Ziel, trotz günstiger, tragbarer Kosten eine hohe, städtebauliche, ökologische, bauliche und gestalterische Qualität zu erreichen. Daneben können sich auch Migrantenfamilien mit Dauerwohn-recht an dem Projekt beteiligen.

2. Die Lage

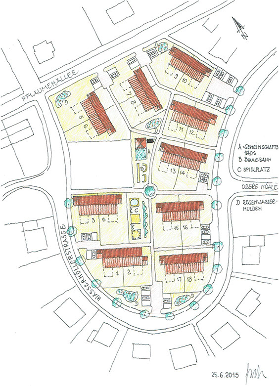
Die Stadt Trebbin (ca. 9.300 EW) liegt südlich von Berlin (40 km) und Potsdam (30 km), am östlichen Rand des Naturparks Nuthe-Nieplitz. Im westlichen Stadtgebiet, im Baugebiet „Am Mühlengraben“ liegt das Plangebiet - Wassermüllerstrasse.

Entfernungen:

  • zum Stadtzentrum 1 km
  • zum Einkaufszentrum 300 m
  • zum Bahnhof 2 km
  • zum Gesundheitszentrum 2,5 km
  • zur Bushaltestelle 100 m

Öffentlicher Nahverkehr
Bus (B) und Regionalbahn (R)

Berlin-Zentrum B+R 35 – 45 Min. stündlich von 4:45 bis 23:45 Uhr

Potsdam-Zentrum B+R 30 – 40 Min. stündlich

3. Die Organisationsform des Projektes

Es wird eine Baugemeinschaft gebildet, in der jede Baufamilie selbständiger Bauherr seines Bauvorhabens ist. Für die Beratung bei der Finanzierung, Beantragung von Fördermitteln, Abschluss von Verträgen, Verwaltung der Mittel (Treuhandkonto) und die Zwischen- und Endabrechnungen, schließt der Bauherr einen Vertrag mit einem vom Land zugelassenen Betreuer.

Ein wesentlicher Aspekt dieses Projektes ist die Möglichkeit der Selbsthilfe als Eigenkapital-Ersatzanteil (max. 15.000,00 €).

Die Häuser sind speziell für die Ermöglichung von Selbsthilfe auch durch Nichtfachleute entworfen und konstruiert. Die Selbsthilfe wird fachlich betreut.

4. Die Grundstücke

Das Plangrundstück befindet sich im Eigentum der Evangelischen Gemeinde Trebbin. Die parzellierten Grundstücke werden in Erbpacht
(ca. 1,80 €/m²/Jahr,  99 Jahre mit Anrecht auf Verlängerung), vergeben. Die Grundstücksgrößen variieren zwischen 480 m² und 680 m². Die außerhalb der Einzelgrundstücke liegenden Flächen (für Wege, Grünflächen, Stellplätze) werden von der Baugemeinschaft in Erbpacht übernommen, verwaltet  und unterhalten. Die Kosten für Erbpacht, Erstellung der Anlagen, die Pflege und Unterhaltung übernehmen die einzelnen Erbpachtberechtigten zu jeweils 1/18tel.

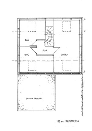
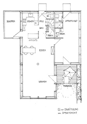
5. Die Häuser

haben eine Wohnfläche von 130 m², sind teilbar und um 20 – 30 m² erweiterbar. Anpassung der Grundrisse an persönliche Bedürfnisse sind möglich.

Bis auf die Gründung (Beton) bestehen tragende Teile der Außenwände aus Holzfachwerk, die Decken über dem EG aus einer Holzbalkenlage (von unten sichtbar), das Satteldach aus Holzsparren und Holzpfetten, weitgehend  im Werk vorgefertigte Elemente und vor Ort montiert. Vier Stützen im Inneren des Gebäudes, ebenfalls aus Holz bilden die Tragekonstruktion für Deckenbalkenlage und Firstpfette.

Diese Bauart bietet eine hohe Grundrissvariabilität und erleichtert Grundrissteilungen und Erweiterungen.

6. Die Gestaltung und Ausführungsqualität

Das verantwortliche Architekturbüro plant und betreut seit 30 Jahren den Bau von Wohnanlagen und Siedlungen, die in der Form von Baugemeinschaften, auch zum Teil mit organisierter Selbsthilfe realisiert wurden. Alle Projekte dieses Büros haben mit Preisen und Auszeichnungen (Bauherrenpreise, vorbildliche Bauvorhaben u.a.) Anerkennung gefunden.

Bei der internationalen Bauausstellung Emscherpark, war das Büro für das Thema Organisierte Selbsthilfe im Wohnungsbau verantwortlich und hat für das Land Brandenburg 2005 ein Gutachten über das gleiche Thema erstellt.

7. Die Materialeigenschaften

Zur Anwendung kommen überwiegend ökologisch zertifizierte  Baustoffe.

Holz und Lehm für Wände, Holz für Decken und Dach, Dachdeckung mit Tonziegeln, Wärmedämmung in Dimensionen, die bei der Energieberechnung den KfW-Wert 55 sicherstellen. Fenster aus Holz mit 3-fach-Verglasung.

Heizung:
Fußbodenheizung im Erdgeschoß, Wandheizung im Dachgeschoss, Erd– alternativ Luftwärmepumpe und kontrollierte Lüftung mit Wärmerückgewinnung.

8. Kosten

Bei den Kosten handelt es sich nicht um garantierte Festkosten. Sie sind auf der Basis einer Kostenberechnung unter Zugrundelegung der Erstellung von detaillierten Leistungsverzeichnissen und daraus resultierenden Angeboten von Firmen oder Preisen aus vergleichbaren Projekten ermittelt worden.

Aufträge werden grundsätzlich pauschaliert und vor Baubeginn vergeben, so dass eine große Kostensicherheit besteht.

Die Kosten liegen zurzeit bei:

Standardhaus - Doppelhaushälfte

  • 1.650,00 €/m² WFL
    mit Brennwerttherme
    ohne kontrollierte Lüftung
  • 1.750,00 €/m² WFL
    mit Wärmepumpe und
    kontrollierter Lüftung

Die Kosten beinhalten alle Bau-, Freianlagen-, Erschließungs- und Nebenkosten (auch Grunderwerbssteuer, Notarkosten)

 

Baugemeinschaft Trebbin Wassermüllerstraße | Lageplan
Baugemeinschaft Trebbin Wassermüllerstraße | WOHNEN IN TREBBIN | BAUEN MIT ORGANISIERTER UND BETREUTER SELBS
Baugemeinschaft Trebbin Warrermüllerstrasse | Eigenleistungen durch Selbsthilfe

Für die Baugemeinschaft werden noch Mitbaufamilien gesucht

Kontakt

GRÜNEKE ARCHITEKTUR STADTPLANUNG
Detlef Grüneke

Blankenseer Dorfstrasse 19
14959 Trebbin

Tel.: +49 (0) 337 31 - 28 97 06
Mobil: +49 (0) 160 - 979 27 450

E-Mail: d.grueneke@gmx.de
Internet:
www.grueneke.de

Formular wird gesendet...

Auf dem Server ist ein Fehler aufgetreten.

Formular empfangen.